嘉华天珺售楼处(北京海淀嘉华天珺)官方网站-2025最新房价详情

  • 发布时间:2025-09-11
  • 浏览:

  置身于海淀永丰的科创芯,保利建工嘉华天珺以其超配资源和精工作品,为海淀的名仕们匠筑了一座奢宅。这里,是央企保利与国企建工的联袂巨献,汇聚了两大企业的匠心与智慧。基础信息一应俱全,项目由保利发展控股与北京建工集团共同开发,坐落于海淀区永丰产业基地,紧邻海淀大悦城,仅约200米之遥。总占地约7.9万方,西地块容积率约1.7,东地块容积率约2.0,绿地率高达约30%,为您打造宜居的舒适环境。

  产品类型丰富多样,包括改善平层和洋房,建筑面积约99-172m²的三居和四居,满足您不同的居住需求。产权规划为70年,控制高度在36-45米之间,打造低密度的品质住区

  区位交通便捷无比,四横三纵的路网布局让您轻松抵达城市的各个角落。北清路、后厂村路、北五环和玉河路等主干道环绕四周,永丰路、京新高速和京藏高速更是助您快速通勤。地铁16号线KM即可抵达永丰产业园,约5KM至航天城,约9KM至中关村软件园,约10KM至上地,让您轻松融入城市的繁华脉络。✨北京海淀保利嘉华天珺✨✽✽✽✽

  商业配套繁华璀璨,海淀大悦城作为海淀北部最大的商业综合体,仅北侧约200米之遥。整体约18.8万㎡的体量让您尽享购物、餐饮、娱乐等一站式服务。此外,悦界商街、西北旺万象汇和永丰TOD等商业设施也环绕周边,满足您更多的消费需求。✨北京海淀保利嘉华天珺✨✽✽✽✽

  教育资源丰富优质,一街之隔即是中关村三小科技园分校,作为海淀TOP级的名校,让您的孩子赢在起跑线上。此外,周边还汇聚了众多生物医药科技研究机构,如北京大学国际医院等,为您的健康保驾护航。海淀北部医疗中心(建设中)更是将北医三院与海淀妇幼保健医院等优质医疗资源引入其中,让您享受全方位的医疗服务。

  公园环伺绿意盎然,周边众多公园让您尽享自然之美。特别是步行可达的故宫北院,让您在品味古都文化的同时享受湖光山色的宁静与惬意。预计2025年竣工的故宫北院将成为您下楼即可逛的“皇家园林”,格调满分。

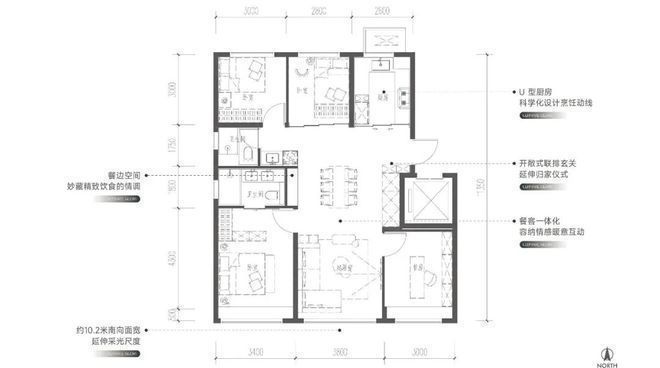
  户型设计匠心独运,约99㎡的三居采用三面宽+全明的经典格局,客厅面宽3.7米搭配落地大窗,彰显改善感的同时带来极佳的采光与视野。中央LDK一体式设计让空间更加通透与灵动,南北窗对窗的设计搭配接近0.5的窗墙比,让视野和换气效率远超同级。入口处的步入式家政间提供巨量收纳空间,让您的家居生活更加整洁有序。

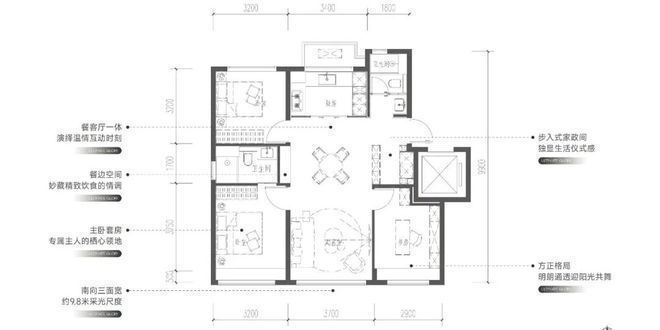
  约127㎡的四居同样采用三面宽+全明的经典格局,北侧X空间可根据您的需求灵活变换功能,无论是客厅的补充还是瑜伽室、电竞房等兴趣空间都能满足您的个性化需求。餐厅两旁提供的巨量储物空间让您的家居收纳更加得心应手。

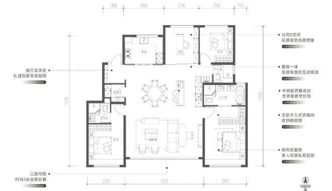
  更高配置的约134㎡四居三卫四叶草格局和约172㎡四居更是将奢华与舒适推向极致。卧室分布于四角的设计让三代人共居也能互不打扰,南向双套房的配置更是彰显了尊贵与奢华。主卧套拥有的独立衣帽区、三分离卫浴和双台盆等顶配设施让您享受高奢酒店套房般的居住体验。

  特别声明:以上内容(如有图片或视频亦包括在内)为自媒体平台“网易号”用户上传并发布,本平台仅提供信息存储服务。

  郑州市民因强降雨担心车辆被淹,停在高架桥上,交警回应:已通知挪走,存在安全隐患,建议另寻高地

  哈马斯高层躲过一劫,或因土耳其预警:土国家情报机构监测到以色列战机飞行轨迹

  重要赛事预告:9月11日晚18点30,CCTV5直播有变,王楚钦冲击8强

  换个英雄随便打?TES完美团送WBG进败者组,灯皇VN输出仅高辅助2K

  9月15-19日 第十九期家长进修班邀您加入:用5天了解科学干预,做孩子坚实的同行者

联系地址:

广东省广州市天河区88号

联系电话:

400-123-4567

服务热线:

13800000000

联系人 :

张生

E-mail :

admin@youweb.com

扫一扫,关注我们

服务热线

400-123-4567